Skip to content

Drive-Thru Restaurant Proposed For Mountain Road

A developer is proposing a drive-thru restaurant in a vacant lot on the corner of Mountain Road and Terris Avenue.

WP Holdings Limited put forward an application to repeal a by-law and rezone the proposed land for their development.

The restaurant is believed to provide 46 seats and 29 parking spaces.

The entire site is about 3,316.4 square meters, made up of 8 separate PIDS. Two PIDs on the proposed lot are subject to a conditional agreement from a previously proposed development.

A two-storey retail and office complex was proposed for the space in 2015 but failed to comply with an agreement that required the owner to receive a development permit within 12 months. A conditional zoning agreement in 2017 extended the timeline for the development to occur by 60 months; However, the owner failed to gain any steam and as a result, is selling the property to WP Holdings Limited.

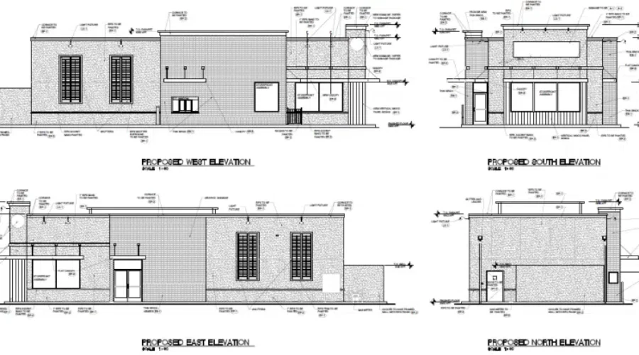
The proposed site plan for the drive-thru. (Image via City of Moncton)

A new drive-thru restaurant will align with other establishments in the area that include an existing drive-thru restaurant and a gas station.

Landscaping and a 2-meter-high opaque fence will be established to provide screening between the development and the residences to the north.

A traffic study submitted by the developer and reviewed by the City’s Traffic Engineer found there would be minimal traffic impact to Terris Avenue. Two driveways on the property will provide access via Mountain Road.

City staff recommended that Moncton City Council proceed with the rezoning process.

Moncton City Councilors gave the first reading to the zoning by-law amendment, and a public hearing is scheduled for September 20. City Staff will also refer the proposed development to the city’s planning committee for their written views on August 25.

Author

Do you have a news tip?

Submit to NBNews@radioabl.ca.

loader-image
Moncton, NB
5:18 pm, Apr 20, 2026
weather icon 7°C
L: 7° H: 7°
overcast clouds

What’s Trending